Ružinovčania diskutovali o Cvernovke

12.3.2016
0
Ružinovčania diskutovali o cvernovke - cvernovka_uzemny_plan Ružinovčania diskutovali o cvernovke - cvernovka_uzemny_plan
Páčil sa vám článok?

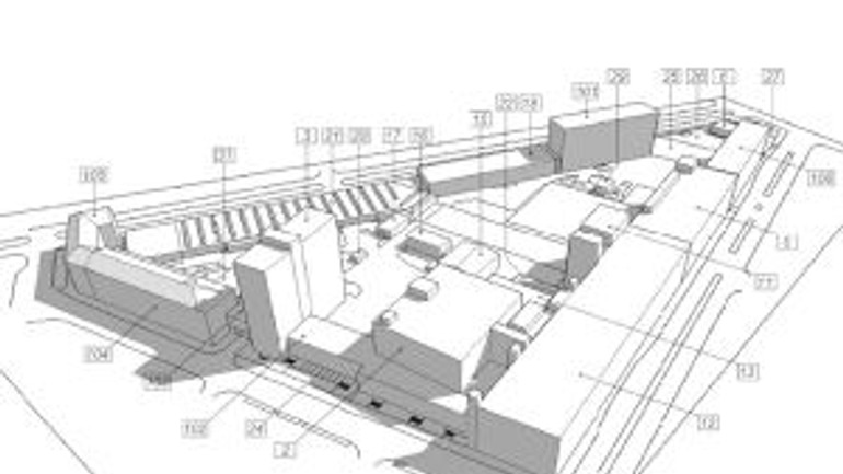
Ružinovčania diskutovali o budúcej tvári bývalej továrne na výrobu nití. Na verejnej prezentácii konceptu riešenia Územného plánu zóny Cvernovka sa zišli odborníci, aktivisti ale i obyvatelia z okolitých bytových domov.

„Koncept návrhu riešenia má dva varianty. Prvý ráta s približne 700 bytmi, pričom zostane zachovaný maximálny počet súčasných stavieb, v popredí je aj ich rekonštrukcia. Druhý ráta s novou výstavbou a počtom bytov 720. Obe alternatívy počítajú s ponechaním objektov, ktoré majú platné asanačné povolenia. Ide napríklad o studňu či budovu silocentrály v blízkosti továrne, národnej kultúrnej pamiatky,“ uviedol spracovateľ Územného plánu zóny Cvernovka architekt Peter Žalman.

Obyvateľov zaujímalo aj riešenie statickej dopravy. Tá je navrhnutá prevažne v podzemí s takmer 1 500 parkovacími miestami. Súčasťou je aj návrh novej aleje na časti Svätoplukovej ulice, rovnako aj na časti Páričkovej ulice na strane riešeného územia. Územný plán zóny musí vychádzať z ÚPN hlavného mesta.

(ts)

Páčil sa vám článok?