Ružinovčania diskutovali o regulácii územia Cvernovky

17.2.2016
0
Ružinovčania diskutovali o regulácii územia cvernovky - cvernovka_uzemny_plan Ružinovčania diskutovali o regulácii územia cvernovky - cvernovka_uzemny_plan
Páčil sa vám článok?

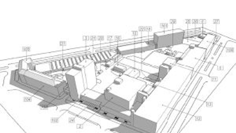
Odborníci, aktivisti i obyvatelia bratislavského Ružinova sa v pondelok (15.2.) podvečer zišli na vyše trojhodinovej diskusii o budúcom vzhľade lokality, v ktorej sa nachádza bývalá továreň na výrobu nití. Autori konceptu riešenia územného plánu zóny (ÚPN-Z) Cvernovka predstavili verejnosti dva varianty riešenia.

Predložený návrh vychádza z územného plánu hlavného mesta, ktorý sa týka územia vymedzeného ulicami Páričkova, Svätoplukova a Košická. Zároveň spodrobňuje reguláciu stanovenú celomestským územným plánom. Ako vysvetlil spracovateľ riešenia, architekt Peter Žalman, v prípade oboch návrhov riešení je navrhovaný objem výstavby o 20 percent menší, ako povoľuje celomestský územný plán.

"Prvý variant riešenia ráta s výstavbou približne 700 bytov a zachovaním maximálneho počtu súčasných stavieb, druhý predpokladá novú výstavbu a vytvorenie 720 bytov," informoval o možnostiach riešenia spracovateľ dokumentu architekt Peter Žalman. "V prípade oboch návrhov sa rešpektuje ponechanie objektov, ktoré majú platné asanačné povolenia. Ide napríklad o studňu či budovu silocentrály v blízkosti továrne, národnej kultúrnej pamiatky," doplnil Žalman.

Prítomných obyvateľov zaujímalo aj riešenie statickej dopravy. Tá je navrhnutá prevažne v podzemí s takmer 1500 parkovacími miestami. Na povrchu garáži ráta spracovateľ so zelenými strechami. "Súčasťou je aj návrh novej aleje na časti Svätoplukovej ulici, rovnako aj na časti Páričkovej ulici na strane riešeného územia," priblížil Peter Žalman.

S prípravou ÚPN-Z Cvernovky začala mestská časť z dôvodu, že okrem bytového domu na rohu Košickej ulice a Dulovho námestia a strednej odbornej školy na Svätoplukovej ulici, je zvyšok areálu Cvernovky v súkromných rukách. "Chceme zachovať charakteristické črty Cvernovky, ktorá neodmysliteľne patrí k histórii Ružinova a Bratislavy a zároveň dať tomuto priestoru možnosť pre rozvoj," uviedol Pekár. Upozornil, že pre pozitívny výsledok tejto snahy bude dôležité zosúladenie predstáv mestskej časti, súkromného investora i verejnosti.

Ružinovčania môžu svoje pripomienky ku konceptu riešenia ÚPN-Z Cvernovka zasielať na Miestny úrad Bratislava-Ružinov do 1. marca 2016.

(TASR)

Páčil sa vám článok?