Verejnosť môže pripomienkovať územný plán Cvernovky

2.2.2016
0
Verejnosť môže pripomienkovať územný plán cvernovky - cvernovka_uzemny_plan Verejnosť môže pripomienkovať územný plán cvernovky - cvernovka_uzemny_plan
Páčil sa vám článok?

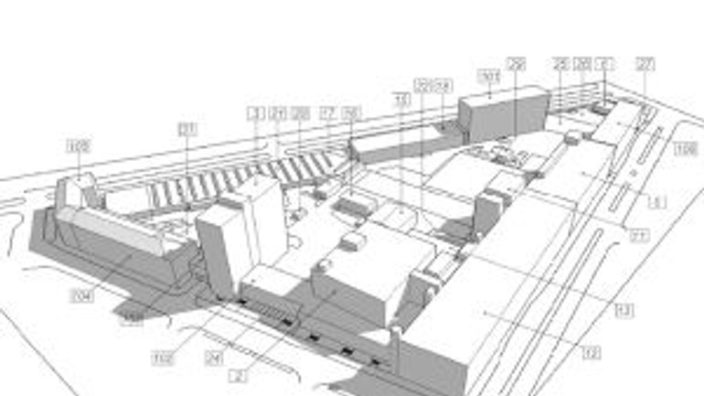
Verejnosť môže až do 1. marca pripomienkovať koncept územného plánu zóny (ÚPN-Z) Cvernovka. Areál medzi Páričkovou, Svätoplukovou a Košickou ulicou v Bratislave, na ktorom stála kedysi továreň na nite a ktorej súčasťou je i pamiatkovo chránený objekt pradiarne, je v súčasnosti v súkromnom vlastníctve.

Starosta Ružinova Dušan Pekár zdôraznil, že nový územný plán má zachovať charakteristické črty tohto územia a zároveň mu umožniť rozvoj. "Naším cieľom je určiť jasné pravidlá," priblížil cieľ tvorby územného plánu Pekár. ÚPN-Z Cvernovka spodrobní mestský územný plán a určí limity priestorového a funkčného využitia územia, stanoví dopravné a technické vybavenie lokality a aj jej vzťahy k širšiemu okoliu, kde vznikne nová autobusová stanica.

Koncept riešenia územného plánu zóny možno nájsť na webe mestskej časti. Laická aj odborná verejnosť sa môže s dvomi variantmi konceptu oboznámiť aj na verejnom stretnutí, ktoré sa uskutoční 15. februára o 16.00 h vo veľkej sále Spoločenského domu Nivy.

Prispieť k účelnému rozvoju areálu Cvernovky chce aj nadácia, ktorá vznikla v prvej polovici januára. Jej zrod iniciovali súčasní nájomníci v priestoroch bývalej Cvernovky – od maliarov, fotografov, architektov až po ľudí venujúcich sa startupom či módnemu dizajnu. Cieľom tejto Nadácie Cvernovka je spojiť developersky projekt s vytvorením centra kreatívneho priemyslu v objekte bývalej pradiarne.

(TASR)

Páčil sa vám článok?