Podpísali zmluvu o výstavbe športového areálu v Rači

11.11.2014
0
Podpísali zmluvu o výstavbe športového areálu v rači - raca_areal1 Podpísali zmluvu o výstavbe športového areálu v rači - raca_areal1
Páčil sa vám článok?

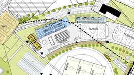
Starosta Mestskej časti Rača Peter Pilinský podpísal vo štvrtok 6. novembra 2014 zmluvu o prenájme pozemkov s firmou LBG Aréna, s.r.o., ktorá má na magistrátnych pozemkoch zverených do správy mestskej časti vybudovať multifunkčný športový areál SAR na Černockého ulici.

Podľa zmluvy sa firma LBG Aréna, s.r.o. zaväzuje urobiť všetky právne úkony potrebné k tomu, aby stavebné povolenie nadobudlo právoplatnosť najneskôr od dnes do dvoch rokov. Podľa zmluvy sa nájomca tiež zaväzuje na prenajatých pozemkoch zachovať BMX dráhu a odstrániť zemné valy, betónový ovál a zabezpečiť prekládku vodného toku ako aj prekládku vodovodu.

„Spoločnosť LBG sa zaviazala vyhradiť minimálne 10 hodín týždenne na korčuľovanie a plávanie pre všetky račianske základné školy a materské školy, ďalej korčuľovanie pre obyvateľov Rače minimálne dve hodiny týždenne v popoludňajších a večerných hodinách so zľavou a plávanie pre verejnosť minimálne dve hodiny denne v popoludňajších a večerných hodinách. Pre investora je zmluvnou povinnosťou sprístupniť prekrytú multifunkčnú halu pre verejnosť 24 hodín denne tak, ako iné bežné verejné ihriská,“ povedal starosta Rače Peter Pilinský.

Mestská časť do desiatich dní protokolárne odovzdá predmetné pozemky na Černockého ulici LBG Aréne, ktorá sa po tomto termíne už bude o ne starať na vlastné náklady. Vlastníkom prenajatých pozemkov však naďalej zostáva výlučne Hlavné mesto SR Bratislava a správcom mestská časť.

Zmluvu zostavovali obe strany, na čo bola v lete zriadená pracovná skupina zostavená z račianskych poslancov (Juraj Madzin, Mário Khandl, Miloš Máťuš, Michal Hrdlička, Milan Andráš), prednostky Jany Peškovej, zástupcu hlavného mesta SR Bratislavy a zástupcov investora. Na zasadnutiach komisií sa prechádzali jednotlivé ustanovenia zmluvy, nachádzali sa kompromisné riešenia a kompletizovali sa dodatky a prílohy.

„Som rád, že v procese vybudovania multišportového komplexu v Rači sme sa výrazne pohli dopredu. Dnešné podpísanie zmluvy je výsledok niekoľkomesačnej práce zástupcov mestskej časti aj investora. Som presvedčený, že multifunkčný športový areál na Černockého sa stane vyhľadávaným miestom aktívneho trávenia voľného času pre Račanov, ako aj pre ľudí z celej Bratislavy a okolia,“ povedal starosta Rače Peter Pilinský.

Slovenský hokejový reprezentant Ľubomír Višňovský pozorne sleduje vývoj situácie okolo schválenia prenájmu pozemkov v Rači, na ktorých chce s partnermi v spoločnosti LBG Aréna postaviť športový multikomplex SAR. V rozhovore pre denník SME vysvetlil, ako bude mať právnikmi ošetrené svoje financie v spoločnosti. Podľa majstra sveta z roku 2002 bude areál určený najmä Račanom, ktorí dostanú určité hodiny plávania či korčuľovania zadarmo alebo za finančne výhodnejších podmienok. Ostatní Bratislavčania aj ľudia zo Slovenska budú tiež vítaní, takže to bude pre širokú verejnosť.

“Bude tam plaváreň, 25-­metrový bazén aj menšie bazény. Rozmýšľame, že spravíme pre deti nejaký tobogánik. Bude tam ľadová plocha, skatemill (plocha na trénovanie korčuľovania, pozn. red), posilňovňa, hotelík pre kempy a rôzne súťaže, ktoré tam budú prespávať. Postavíme aj otvorenú všešportovú plochu zakrytú len strechou, ktorá bude väčšinu času otvorená pre verejnosť. Na nej sa bude dať hrať minifutbal, basketbal, inline, hokejbal a rôzne iné športy. Pre deti budú vonku detské ihriská, chceme urobiť plochu pre skatebordistov aj oddychovú zónu, stometrové tartanové ihrisko pre atlétov a množstvo ďalších vecí. V areáli bude aj niečo, čo na Slovensku ešte nemáme. Nechcem ale všetko dopredu prezrádzať. Nechceme tiež kaziť nič, čo je už vybudované, takže tam ponecháme aj bikrosový areál.“

(banoviny)

Páčil sa vám článok?